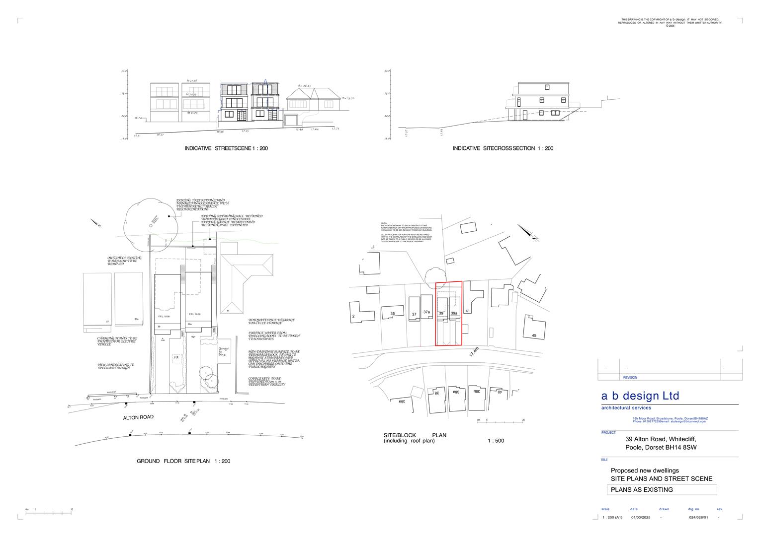
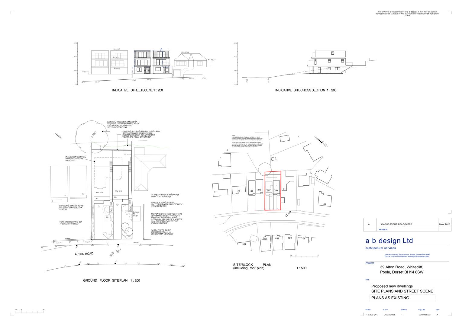
Completion is due Autumn 2026 for these two brand new homes, approx 1,850 sq ft each, detached and set over three floors with 4 bedrooms, 4 bathrooms and finished to a high specification throughout.
Bedrooms: 4
Bathrooms: 4
Reception Rooms: 1
2 new build, 3 storey, detached houses
4 bedrooms • 4 bathrooms
Built to a high specification throughout
10 year build warranty
Approximately 1,850 sq ft of accommodation
Kitchen & utility with integrated Neff appliances
Balcony & private rear garden with porcelain patio
Block paved driveway
Gas fired central heating
Solar panels
Benefitting from a bespoke handleless kitchen with soft close doors and floor to ceiling units, integrated Neff appliances and a utility room, along with a lounge and diner & cloakroom.
The properties will be finished to a high specification throughout, incorporating gas fired central heating and solar panels.
A block paved driveway will be to the front of the properties and porcelain patios to the rear with the remainder of the garden laid to lawn.
Plans are available along with the opportunity of meeting the Developer if required. There is an opportunity at this early stage for a plot sale and build contract. Reservations can be made now - register your interest today with Lloyds Property Group.
